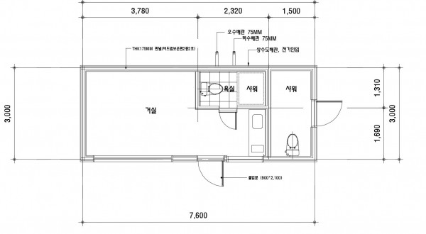
이동식 주택(징크6+외부화장실1.5평) -전남 영암- > PORTFOLIO
본문 바로가기
주메뉴입니다.
마룸
포트폴리오
공지
블로그
가격 알아보기
Korea
/
English
ABOUT US
포트폴리오
PORTFOLIO
이동식 주택(징크6+외부화장실1.5평) -전남 영암-
이전글
다음글
목록
본문