나만의 PX 룸 (충남 태안 가설건축물 5평형) > PORTFOLIO
본문 바로가기
주메뉴입니다.
마룸
포트폴리오
공지
블로그
가격 알아보기
Korea
/
English
ABOUT US
포트폴리오
PORTFOLIO
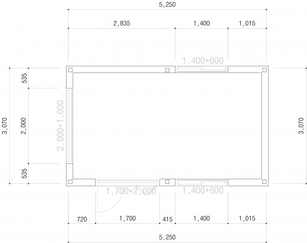
나만의 PX 룸 (충남 태안 가설건축물 5평형)
이전글
다음글
목록
본문