강화도 근생 건축 6평형 (숲속의작은집) > PORTFOLIO
본문 바로가기
주메뉴입니다.
마룸
포트폴리오
공지
블로그
가격 알아보기
Korea
/
English
ABOUT US
포트폴리오
PORTFOLIO
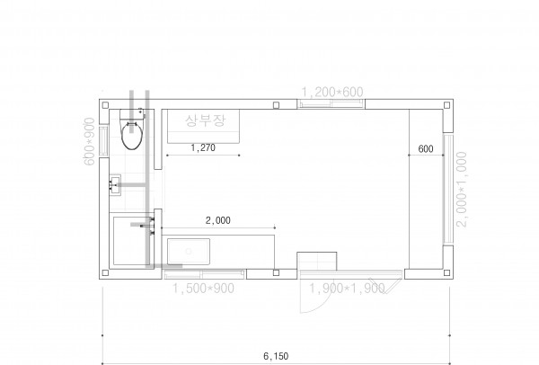
강화도 근생 건축 6평형 (숲속의작은집)
이전글
다음글
목록
본문